La consejería aporta 300.000 euros para la adquisición del inmueble, que está situado frente al Palacio Fontela donde se ubica el actual Museo Etnográfico de la localidad

El pasado 29 de diciembre se resolvió el convenio de colaboración entre la Consejería de Cultura, Política Llingüística y Deporte y el Ayuntamiento de Grado para la puesta en marcha del Museo del Traxe. Firmado por la consejera del Principado, Vanesa Gutiérrez, y el alcalde de la localidad, José Luis Trabanco, el acuerdo resuelve la ampliación del Museo Etnográfico y de Historia de Grau/Grado, con la creación del Museo del Traxe “en un nuevo espacio dentro del conjunto histórico de Grau/Grado, colindante con una de las actuales sedes del museo etnográfico”.
El nuevo museo de integrará en la Red de museos etnográficos de Asturias (Red MEDA), coordinada y dirigida por la Consejería de Cultura, Política Llingüística y Deporte. La consejería compromete una partida de 300.000 euros para la adquisición del bien inmueble, destinado a la nueva institución cultural asturiana. Por su parte, el Ayuntamiento se encargará de sufragar los gastos necesarios para la adecuación, rehabilitación y arreglo necesarios para la puesta en marcha del Museo del Traxe. El consistorio ha acordado tener finalizados los trabajos en un año, antes del 31 de diciembre.
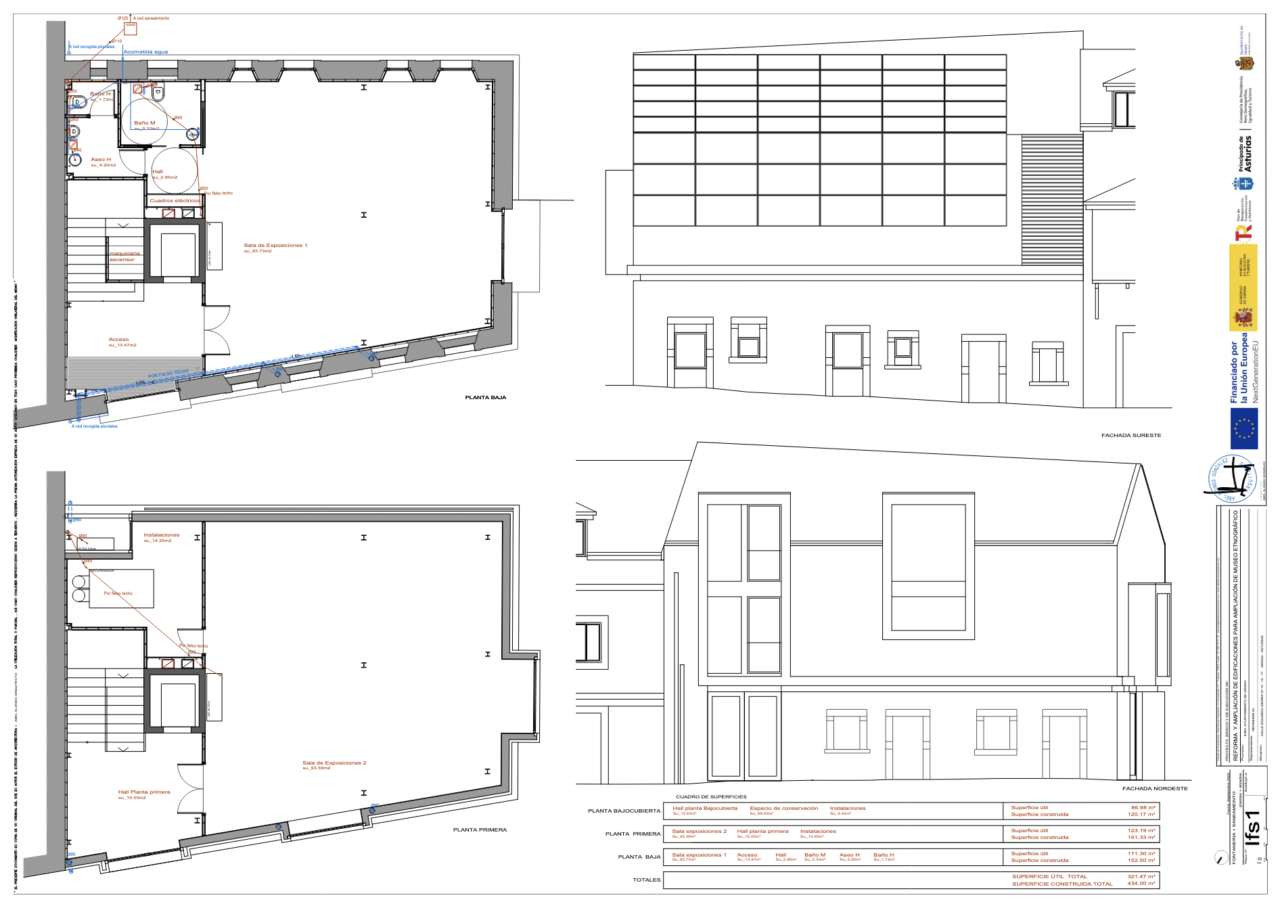
El nuevo equipamiento se ubicará en la calle Eduardo Sierra, frente al extraordinario edificio del Palacio Fontela, sede del Museo Etnográfico, donde hasta no hace mucho había proyectado una promoción inmobiliaria de “exclusivas viviendas de 1 y 2 dormitorios”, además de locales comerciales. Ahora, la unión de los tres inmuebles servirá para un nuevo equipamiento cultural en la ciudad. El proyecto de reforma, que firma el Estudio de arquitectura de Abel Alonso González, ejecutará la obra sobre una superficie útil de 321.47 metros cuadrados (y de una superficie total construida de 434.00 metros cuadrados). El objeto de la ampliación de espacios museísticos ya tiene un contrato licitado por el consistorio por valor de 581.729 euros, para ejecutar en seis meses. El nuevo museo contará con unas instalaciones que se desarrollarán en las plantas baja y primera, bajocubierta y dependencias auxiliares.
La ubicación del museo en Grado responde a la celebración en esta población del evento más importante del Principado dedicado a la indumentaria tradicional, el Día’l traxe’l País. Durante ese domingo se exponen y valoran réplicas fieles de los trajes del siglo XIX, con la misión de promover la cultura y la identidad asturiana. El último domingo de septiembre de 2026 se celebrará la décima edición de este certamen, que ha sido reconocido por ser una muestra valiosa de la tradición de las raíces de un pueblo. Cerca de cuarenta participantes presentan cada edición, en la capilla de los Dolores de Grado, lo mejor de la vestimenta tradicional. El Ayuntamiento plantea solicitar su declaración de Fiesta de Interés Regional.



